Museo del cinema
Il progetto riguarda la nuova sede degli uffici dei Festivals del museo del Cinema di Torino; ovvero il Torino film festival, CinemAmbiente e Lovers. Gli spazi oggetto dell'intervento sono posizionati all'interno di un complesso nato dal recupero di una struttura industriale di inizio 900 (l’ex lanificio Colongo) sede, tra gli altri della Film Commission diTorino.
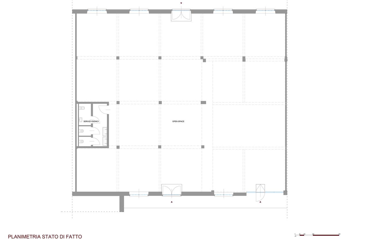
L'area dei nuovi uffici ha una dimensione di circa 500 mq organizzati in un open space di forma pressochè quadrata. L'ambiente è fortemente caratterizzato dalla fitta rete di pilastri in C.A. sovrastati da travi ribassate con copertura a shed.
L'ingresso principale è definito da una bussola blu con angoli smussati da cui si accede ad un open space con al centro la zona attesa ed ai lati gli uffici. Tutti gli ambienti sono caratterizzati da partizioni verticali divise in quattro a crociera realizzate alternando cartogesso e vetro in modo tale da creare inaspettati corridoi visivi pur mantenendo la giusta privacy tra i diversi uffici.
Lo spazio caratterizzato dalle griglie quadrangolari dei tamponamenti viene ammorbidito da alcuni elementi curvi come i 3 grandi “dischi” dell'impianto di climatizzazione posti al centro dell'open space, le luci circolari posizionate all'interno degli uffici e la bussola d'entrata, sorta di tunnel con gli angoli smussati. Tutti i pavimento sono realizzati in battuto di cemento.























Progetto: Pietro Abbruzzese Dario Sasso
Collaboratori: Emanuela Baietto,Paola Perdighe
Lavori: Franco s.r.l . Coopel 3
Cliente: Museo nazionale del cinema. Fondazione film commission Torino Piemonte
Superfice: 500 mq
Foto: Mariano Dallago