Tropical Minimal

Residenziale
anchor
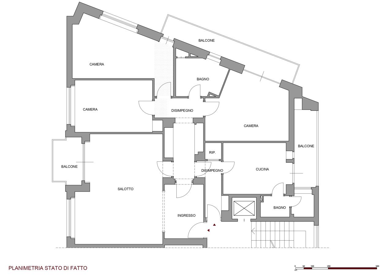
Ristrutturazione appartamento di 150 metri quadrati a Torino.

L'alloggio, prima dell'intervento era composto da un grande salotto, cucina, due camere, due bagni e spazi distributivi troppo grandi e mal pensati. La richiesta della committenza era di poter mantenere il grande salotto, anzi, se possibile, ingrandirlo accorpando una cucina a vista, ricavare tre stanze, due bagni, un grande ripostiglio e sfruttare il secondo accesso all'abitazione per ricavare un monolocale con bagno. Limando e riprovando ci siamo riusciti.

Gli elementi che connotano maggiormente il progetto sono: nella zona giorno la grande e luminosa cucina a vista protetta da un'ampia parete vetrata, la libreria sospesa in metallo disegnata su misura, le grandi porte in rovere da cui si accede ai corridoi della zona notte: a loro volta connotati dal soffitto azzurro e dai camminamenti in microcemento; finitura che ritroviamo anche nella grande parete del soggiorno e nei due bagni.

I bagni sono caratterizzati da un oblò comunicante e apribile che permette non solo al bagno cieco di avere luce ed areazione naturale, ma connota esteticamente l'insieme creando un gioco di rimandi tra specchi ed l'oblò.


Progetto: Pietro Abbruzzese
Collaboratori: Paola Perdighe
Lavori: Ditutticori, Augello impianti, D'urso termoidraulica, FM carpenteria,SVF falegnameria
Cliente: privato
Superfice: 150 mq
Foto: Mariano Dallago