Clinica dentale Dr. Negri

Uffici
anchor
Uffici
Clinica dentale Dr. Negri
Reception e sala attesa studio dentistico

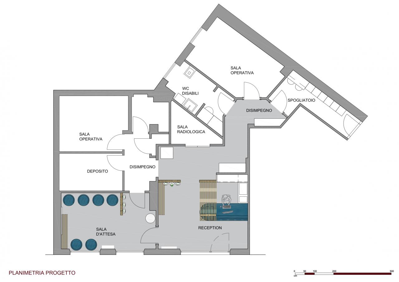
I tre elementi d’arredo che connotano il restyling oggetto dell’intervento sono: l’insegna interna retroilluminata, il bancone e le strutture in legno.
L’insegna interna, collocata sulla parete che separa la reception dalla sala d’attesa, riproduce il logo dello studio e diventa uno degli elementi identitari dello spazio.
A destra del logo, di fronte all’entrata della clinica, il bancone accoglie i clienti dello studio dentistico; realizzato in Fenix, è caratterizzato da un blu notte intenso e da linee pulite e arrotondate.
A separare con discrezione la zona reception dal corridoio che conduce alle sale operative troviamo la struttura separé verticale, composta da tavole in legno di rovere naturale che, in corrispondenza del bancone, al di sopra dello stesso, vengono posizionate orizzontalmente, diventando un celino che sottolinea la centralità del bancone all’interno dell’ambiente.
Completa l’intervento la sala d’attesa, caratterizzata anch’essa da cromie blu notte alle pareti e da strutture separé in legno.

Progetto: Pietro Abbruzzese

Collaboratori: Paola Perdighe
Lavori: Koxca edilizia, Falegnameria svf
Superfice: 50 mq
Foto: Mariano Dallago